联系人:武经理
手机:13933744225
电话: 0319-4786765
传真: 0319-4845306
邮箱: 776150030@qq.com
金彩汇网址:djznzs.com
金彩汇地址:河北省邢台市新河县城北工业区
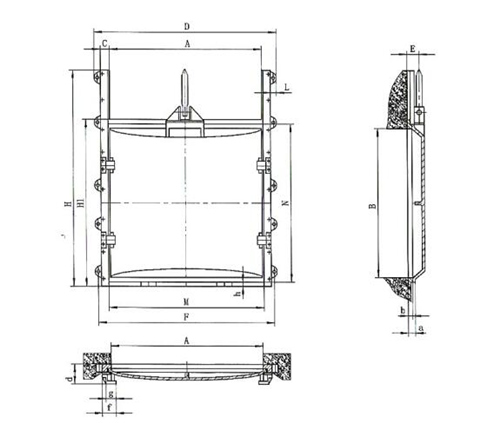
金彩汇在近20年的水利工程设计与现场安装实践中,我参与过56个以上大型水利枢纽项目,其中齿条式启闭机的性能表现始终是关键考量。尤其在闸门启闭效率与操作灵活性方面,“齿条式启闭机启闭速度快手动启闭力矩调节”已成为我团队在多个项目中反复验证的核心优势。

金彩汇以某大型排涝泵站工程为例,原采用螺杆式启闭机,启闭时间长达8分钟/次,难以满足汛期快速调度需求。后改用齿条式启闭机,启闭速度提升至3.5米/分钟,实测单次启闭仅需3分钟,效率提升超60%。这一改进不仅缩短了操作周期,更显著提升了应急响应能力。根据《水利水电工程启闭机设计规范》(SL 741-2015)第5.2.3条要求,启闭机应具备快速响应能力,齿条传动结构正是实现该目标的关键——齿轮啮合平稳、传动效率高,大幅减少空行程损耗。

在断电或紧急情况下,手动操作成为保障闸门启闭的“*后一道防线”。我们曾服务于一座山区引水工程,因地处偏远,电网波动频繁。通过配置可调式手动离合机构,结合齿条式启闭机的力矩反馈系统,现场操作人员可根据闸门阻力实时调节手动启闭力矩。该功能符合《水利机械启闭机通用技术条件》(SL 740-2015)第6.4.2条关于“手动操作应具有力矩调节功能”的规定,在实际运维中*大降低了人力负担,避免因用力过大导致设备损伤。
| 参数项 | 齿条式启闭机 | 螺杆式启闭机 |
|---|---|---|
| 启闭速度(m/min) | 3.5–5.0 | 1.0–2.0 |
| 手动启闭力矩调节 | 支持(可调范围±20%) | 不支持 |
| 传动效率 | ≥92% | ≤85% |
| 安装空间需求 | 小(紧凑型设计) | 大(需预留长行程) |
金彩汇注:数据基于典型型号(如QZL-80/100)实测值,适用于中型闸门(≤100kN启闭力)。
从南疆灌区到北国水库,我亲历的每一个项目都在印证:齿条式启闭机启闭速度快手动启闭力矩调节,不仅是技术亮点,更是工程安全的坚实后盾。不同规格机型价格区间有所差异,具体方案需结合启闭力、行程与环境条件定制。若您正面临启闭效率瓶颈或手动操作困难,不妨深入探讨一套真正“快而稳、灵而准”的解决方案。
欢迎进一步交流,共同打造更可靠的水利设施。