联系人:武经理
手机:13933744225
电话: 0319-4786765
传真: 0319-4845306
邮箱: 776150030@qq.com
网址:djznzs.com
金彩汇地址:河北省邢台市新河县城北工业区
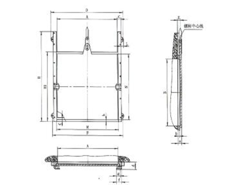
我们在处理0.6*0.6m铸铁闸门启闭机时发现,其安装精度直接影响长期密封性能。针对此类小型铸铁闸门,建议优先依据CJ/T 3006-1992《供水排水用铸铁闸门》中关于门框与门叶配合公差的要求,提前校准预埋件位置,确保门框垂直度偏差≤1mm/m。安装过程中,应使用水平仪分段复核支承面平整度,避免因局部受力不均导致启闭卡阻。同时,根据SL 381-2007《水利水电工程启闭机制造安装及验收规范》第5.2条要求,启闭机传动轴与闸门吊点必须保持同轴,误差不得大于2mm,否则易引发螺杆弯曲或轴承过早磨损。
金彩汇在选型方面,0.6*0.6m铸铁闸门启闭机的启闭速度通常设定在3~5m/min之间,适用于低水头、小流量渠道控制场景。我们曾实测某农田灌溉项目中,采用手动螺旋式启闭机的0.6*0.6m铸铁闸门启闭机,其启闭操作力仅需120N左右,远低于同类钢制产品,且维护成本更低。值得注意的是,虽然铸铁材料抗拉强度较低,但通过GB/T 9439-2010对铸铁件基体组织和石墨形态的严格控制,可有效保障HT250材质在0.6*0.6m尺寸下的结构稳定性。

针对0.6*0.6m铸铁闸门启闭机,建议采购时重点查验厂家是否提供CJ/T 3006-1992认证报告及SL 381-2007规定的出厂检验记录。尤其要确认启闭机蜗轮蜗杆副是否采用锡青铜材质,以提升耐磨性;同时检查闸门密封面是否经精磨处理,确保与门框贴合紧密。此外,定期润滑启闭机传动部件(每季度一次),可显著延长0.6*0.6m铸铁闸门启闭机使用寿命。
金彩汇综上,0.6*0.6m铸铁闸门启闭机虽属小型设备,但其可靠性依赖于**安装与合规选材。采购时务必锁定符合行业标准的产品,并建立定期巡检机制,方能实现“小而稳”的长效运行。