联系人:武经理
金彩汇手机:13933744225
电话: 0319-4786765
传真: 0319-4845306
金彩汇邮箱: 776150030@qq.com
金彩汇网址:djznzs.com
地址:河北省邢台市新河县城北工业区

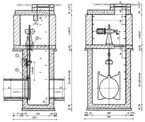
ZMFY型法兰式铸铁镶铜圆闸门型号、外形尺寸、安装尺寸参数表
表(一):ZMFY型DN400-800法兰铸铁镶铜闸门外形及安装布置尺寸参数表
规格型号(mm) | ZMFY-400 | ZMFY-500 | ZMFY-600 | ZMFY-700 | ZMFY-800 | |
外形及安装尺寸参数(mm) | I | 680 | 810 | 1060 | 1140 | 1270 |
g | 586 | 696 | 800 | 940 | 1025 | |
n | 16 | 20 | 20 | 24 | 24 | |
d | 22 | 22 | 26 | 26 | 30 | |
D1 | 495 | 600 | 705 | 810 | 920 | |
D | 540 | 645 | 755 | 860 | 975 | |
E | 150 | 150 | 150 | 150 | 150 | |
F | 180 | 180 | 200 | 220 | 220 | |
C1 | 750-2000 | 960-2000 | 1050-2500 | 1200-2500 | 1350-2500 | |
C | 550 | 600 | 620 | 700 | 750 | |
Φ | 80 | 100 | 100 | 100 | 120 | |

表(二):ZMFY型DN900-00法兰铸铁镶铜闸门外形及安装布置尺寸参数表
规格型号(mm) | ZMFY-900 | ZMFY-1000 | ZMFY-1200 | ZMFY-1400 | ZMFY-1500 | |
外形及安装尺寸参数(mm) | I | 1380 | 1700 | 2050 | 2650 | 2835 |
g | 1160 | 1300 | 1500 | 1650 | 1750 | |
n | 24 | 28 | 32 | 36 | 36 | |
d | 30 | 30 | 30 | 30 | 30 | |
D1 | 1000 | 1120 | 1320 | 1520 | 1630 | |
D | 1075 | 1175 | 1375 | 1575 | 1690 | |
E | 150 | 180 | 180 | 180 | 200 | |
F | 220 | 220 | 250 | 250 | 250 | |
C1 | 1510-2500 | 1650-2500 | 1950-3000 | 2300-3000 | 2410-3000 | |
C | 800 | 900 | 1000 | 1100 | 1150 | |
Φ | 150 | 150 | 150 | 180 | 180 | |

表(三)ZMFY型DN1600-2400法兰铸铁镶铜闸门外形及安装布置尺寸参数表
规格型号(mm) | ZMFY-1600 | ZMFY-1800 | ZMFY-2000 | ZMFY-2200 | ZMFY-2400 | |
外形及安装尺寸参数(mm) | I | 3010 | 3350 | 3820 | 4220 | 4740 |
g | 1850 | 2050 | 2270 | 2520 | 2720 | |
n | 40 | 44 | 48 | 52 | 56 | |
d | 30 | 30 | 30 | 34 | 34 | |
D1 | 1730 | 1930 | 2130 | 2340 | 2540 | |
D | 1785 | 1985 | 2185 | 2400 | 2600 | |
E | 210 | 210 | 210 | 210 | 210 | |
F | 280 | 280 | 280 | 280 | 280 | |
C1 | 2900 | 3050 | 3100 | 3500 | 4000 | |
C | 1200 | 1300 | 1400 | 1600 | 1800 | |
Φ | 180 | 180 | 180 | 200 | 200 | |
表(四)ZMFY型DN2500-3000法兰铸铁镶铜闸门外形及安装布置尺寸参数表
规格型号(mm) | ZMFY-2500 | ZMFY-2600 | ZMFY-2800 | ZMFY-3000 | |
外形及安装尺寸参数(mm) | I | 4940 | 5140 | 5540 | 5940 |
g | 2820 | 2920 | 3120 | 3220 | |
n | 58 | 60 | 64 | 68 | |
d | 34 | 34 | 41 | 41 | |
D1 | 2640 | 2740 | 2960 | 3160 | |
D | 2700 | 2800 | 3030 | 3230 | |
E | 210 | 210 | 210 | 210 | |
F | 280 | 300 | 300 | 300 | |
C1 | 4200 | 4200 | 4400 | 4400 | |
C | 1900 | 2000 | 2100 | 2200 | |
Φ | 200 | 200 | 200 | 200 | |
注:对用在管道口和交汇窖井、污水管道、原站井水口、清水池等位置的,公称压力在0.1Mpa以下的,可与手动、电动启闭机组合配套使用。此款产品多应用于市政、石油、化工、电站、冶金、煤碳、轻工、食品、制药、水利、污水处理等给排水工程中。