联系人:武经理
金彩汇手机:13933744225
电话: 0319-4786765
传真: 0319-4845306
金彩汇邮箱: 776150030@qq.com
网址:djznzs.com
地址:河北省邢台市新河县城北工业区
污水铸铁闸门厂家价位从218元到上千元的都有,价位通常受规格型号及工程项目的要求不同而不同,找大型工厂瑞鑫水工,专注水利闸门近20年,助您掌握一手实时报价行情。

一、污水铸铁闸门简介
金彩汇污水铸铁闸门通常是指应用于污水处理的,灰铸铁或球墨铸铁材质的闸门,规格型号种类繁多,具有安装方便,操作灵活,耐腐蚀性能优良等特点。
二、污水铸铁闸门结构
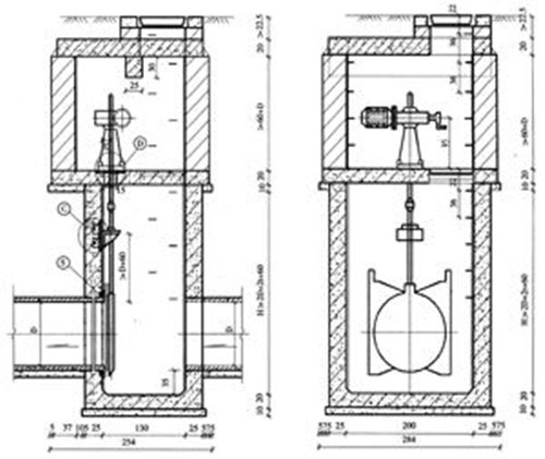
污水铸铁闸门通常为平面滑动结构,结构简单牢固耐用,组件主要有闸框、闸板、导轨、吊耳、契紧装置等组件构成,其中闸框类似于门框,主要是将闸板承受的水压传递给混凝土结构中,闸板是直接承受水压的构件,外形有方形、圆形、拱形、平板等几种常见的形式,导轨为承载固定闸板,使其能够沿着预定的轨道滑动;吊耳连接启闭机装置的构件,契紧装置,更好的使污水铸铁闸门能够密封。

三、污水铸铁闸门常见型号
1、方形污水铸铁闸门的型号通常在200mm*200mm到6米*6米之间,特殊型号支持定制生产;
2、圆形污水铸铁闸门常见型号从dn200mm到dn3000mm之间,多用于圆形孔洞或管道。
四、本厂污水铸铁闸门优势
金彩汇1、本厂污水铸铁闸门规格型号齐全,从拱形铸铁闸门到平板铸铁闸门,从铸铁闸门到铸铁镶铜闸门,从方形到圆形,从手提式到机闸一体式都有,同时支持按需定制;
2、本厂污水铸铁闸门采用消失模铸造技术,规格尺寸更标准,闸门表面平整光滑;
金彩汇3、本厂生产的污水铸铁闸门都留有2毫米的腐蚀裕量,同时表面安装严格的防腐喷涂标准座防腐处理,更耐腐蚀,使用寿命更长;
4、污水处理铸铁闸门配型启闭机型号齐全,可为您提供一站式闸门启闭机服务。

五、污水铸铁闸门常见的安装形式
金彩汇1、暗杆式安装:主要应用不适合明杆式安装的地方,或所在位置空间比较狭小的地方;
2、法兰式安装:此种污水铸铁闸门也被称为法兰式铸铁闸门,主要应用于管道;
3、平底式安装:此种安装方式比较常见,多数闸门采用此种安装
六、污水铸铁闸门止水原理及结构图
污水铸铁闸门止水安装结构组件主要包括可调节的楔紧装置、门体和门框上的楔紧装置,可以调节楔形张紧装置,在闸框迎水面四周与闸板框四周背水面接触处经机械严格的 加工刨光后,表面平直光滑、 贴合严密,从而可以使闸板与闸门的结合面、 止水面与运动滑道合三为一,在单向止水闸门的紧闭斜铁和闸框滑道双重作用下,可确保闸门的纵横运行轨迹稳固, 在水压力和紧闭斜铁的双作用下, 使闸板与闸框滑道紧密贴合, 从而达到有良好的止水水的效果

总结:
以上是关于污水处理铸铁闸门的内容了,其中包含了污水铸铁闸门的简介、相关价位报价行情,组件结构、常见型号、优势特点、安装形式及其止水原理及结构图等内容,关注我们带您了解更多污水铸铁闸门内容。