联系人:武经理
手机:13933744225
电话: 0319-4786765
传真: 0319-4845306
邮箱: 776150030@qq.com
网址:djznzs.com
金彩汇地址:河北省邢台市新河县城北工业区
供应浙江青田1米*1米单向铸铁拱形闸门厂商有很多,比如新河县、宁晋县、衡水冀州有许多厂家,其中还不乏很多经销商,但是生产经验丰富,厂家经营时间比较长的厂家相对就比较少了,比如瑞鑫水工已有16余年的时间。不论是从选材上,还是铸造加工上,再到售后服务上,都有着厂家的要求,为了让用户能够买着放心,厂家支持货到结款,为了让用户用着安心,厂家可安排专业技术人员入驻施工现场协助用户安装。

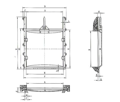
一、浙江青田1米*1米单向铸铁拱形闸门常规尺寸参数
1、板重:185kg;2、总重:311kg;3、A:1000mm;4、B:1000mm;5、C:50mm;6、D:1180mm;7、E:100mm;8、F:1140mm;9、L:40mm;10、H:1440mm;11、H1:1100mm;12、M:1010mm;13、N:1050mm;14、a:55mm;15、b:35mm;16、d:85mm;17、f:85mm;18、g:40mm;19、h:25mm
二、本厂1米*1米单向铸铁拱形闸门特点优势
1、采用无死角金属止水不锈钢止水或镶铜止水,无需安装止水条,止水效果良好;
2、启闭机闸门平稳,运行稳定,挡板通过滑道和斜铁二重约束不会产生位移;
3、结构简单、安装简便,省时省力;
4、规格型号多,比如有:扶壁式的、墙壁式的、暗杆式的、明杆式的等,用户可自由选购,同时可为用户选配适合的启闭机机型;
5、门体和门框的主要材质为球墨铸铁或灰铸铁,因此其减震性、耐腐蚀性、抗氧化性、抗磨性性能优良,且使用寿命长;
6、厂家直接发货,无中间商差价,性价比高;
7、售后服务优良,如确因产品质量问题,厂家免费更换货。

三、安装技术要点:
1、安装前,记得检查各连接部位的螺栓是否在运输或装卸过程中造成了松动,如果有松动应及时加以紧固;
2、整体安装,不得使门框和闸门分开安装,分开安装容易使门框变形,造成后期闸门升降困难和漏水;
3、将闸门的门框埋入部分,插入预留孔洞,并用斜块垫平、校正、使闸门导轨与铅垂线重合(偏差应小于 1/500);
4、检查主立框与横框连结上的止水面是否有错位,如有错位则松动连接螺栓将止水面调整在同一个平面内;
5、二期浇筑前,应将syz型暗杆式铸铁闸门整体吊装就位后,且找好前后、左右的正确位置,再调整螺栓与工程配钢筋焊牢固;
6、在浇筑混凝士时,流进闸板、闸框、斜铁、挡板间隙中的灰浆应清除,防止灰浆凝固影响启闭;
7、安装轴导架以及启闭装置将丝杆穿入启闭机,注意使启闭机中间,丝杆轴心,闸门对称中须在一条铅垂线上;
8、检查闸门密封情兄如有渗漏现象,可将门框两侧的压紧楔块作适当调整,至达到理想的密封效果为止;
9、在闸门的安装过程中,应对青铜密封面做好保护,不得损坏。
总结:
以上就是关于浙江青田1米*1米单向铸铁拱形闸门供应厂商哪家好的内容了,其中包含了1米*1米单向铸铁拱形闸门常规尺寸参数、厂家产品特点优势及安装技术要点等内容。