联系人:武经理
手机:13933744225
电话: 0319-4786765
传真: 0319-4845306
金彩汇邮箱: 776150030@qq.com
金彩汇网址:djznzs.com
地址:河北省邢台市新河县城北工业区
平板铸铁闸门是指挡水面是平板状的的,且没有弧度,其型号表示为PZ,常见的规格有PZ1*1m、PZ2*2米、PZ2米*2.5米,本厂生产的从0.2米*0.2米到5米*5米的都有,其详细的型号及外形安装尺寸可参考本站规格型号中的PZ型水闸(其中1米以下的型号属于小型平板闸门,其外形及安装尺寸可参考PZ小型),此种型号的产品具有结构简单,使用寿命长,采用硬质水,对于止水要求比较高的用户可采用镶铜止水,背面采用“十”字加强筋,承受水压的能力好,安装维护简单,适配的启闭机型号多种多样,比如可适配手电两用型、电动型等等。应用场景多种多样,比如应用于河道、渠道、农田灌溉等,当然也可制作成机闸一体的形式,又称为机闸一体闸门,此种型号的产品安装无需操作平台,水闸自带启闭装置,多为小型的。
一、平板铸铁闸门型号尺寸与之对应的适配启闭机
1、尺寸在200mm*200mm-2500mm*2500mm的平板铸铁闸门通常选用单吊点螺杆启闭机,用户可依据情况选用手动或手电两用型;
金彩汇2、尺寸在2500mm*2500mm-5000mm*5000mm或以上的尺寸的闸门通常选用双吊点螺杆启闭机,用户可选用电动或手电两用型螺杆启闭机。

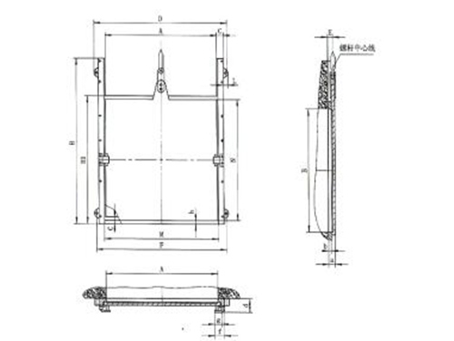
二、平板铸铁闸门结构图如下

三、PZ型平板铸铁闸门型号含义
P:代表平面或平板的意思;
Z:闸门的意思。
与之相近的有PGZ型平面拱形闸门,两者都属于平面直升式水闸,PGZ中的G代表拱形,意思是说闸门挡水板的迎水面是拱形的。

四、PZ型平板铸铁闸门的设计特点优势
1、结构简单,由闸框、导轨、闸板、吊耳等组件构成,小型的通常整体铸造,结构简单稳定;
2、安装方便,尺寸较大的闸门可到工程项目现场组装;
3、操作方便,采用直升式启闭,可配型启闭机型号种类多,可手动,亦可电动,操作方便;
金彩汇4、抗腐蚀能力强,可适应多种不同水质环境;
金彩汇5、此种闸门的闸板与闸框为锥度配合形式,此结构可使闸门闭合后实现良好的止水效果;
金彩汇6、规格型号多,方便选型,比如有双向止水型,可用于污水、涵洞,城市排水等里面能够防止污水倒灌。
总结:
金彩汇以上就是关于PZ型平板铸铁闸门尺寸型号大全、配型启闭机、符号的含义、设计优势特点的内容了,关注我们了解更多关于平面闸门启闭机的知识,新河县金彩汇专注于水工机械生产制造、安装十六年,经过多年坚持不懈的努力,获得了业界的信赖,产品质量可靠,可货到结款,且规格型号齐全,除此之外,如果用户有特殊需求,来图来样,本厂可定制生产。