联系人:武经理
金彩汇手机:13933744225
电话: 0319-4786765
金彩汇传真: 0319-4845306
邮箱: 776150030@qq.com
金彩汇网址:djznzs.com
金彩汇地址:河北省邢台市新河县城北工业区
金彩汇众所周知,铸铁闸门常常被用于河渠、沟渠、渠道等渠系水利工程,也被用圩口涵闸、排灌泵站的小型闸门,孔口尺寸较小的水库涵洞闸门等,那铸铁闸门的装配和安装有哪些要求呢?在此瑞鑫水工做了以下梳理。

一、铸铁闸门装配要求
1、装配后的铸铁闸门的门板与门框和导轨对合,且无卡阻现象;
闸门全闭位置时,止水密封条之间的间隙应不大于0.1mm;
金彩汇2、铸铁闸门装配后门板与门框导向槽之间的前后总间隙应不大于1.6mm;
3、铸铁闸门在装配前应清理门板、门框和导轨,使其保持干净;
4、装配完成后活动楔块、偏心销应有一定的调节量;
金彩汇5、铸铁闸门全闭位置时,安装楔块,闸门全闭时,门板与门框的各楔紧面应同时相互楔紧;
金彩汇6、闸门止水密封条应连接牢固。门板止水密封条下边缘应高于门框止水密封条下边缘,其高差应不大于2.0mm;
金彩汇7、闸门全闭、平放、无外加荷载条件下,止水密封条间隙应不大于0.1mm;
8、 铸铁闸门楔紧装置应连接牢固,不可出现松动。

二、铸铁闸门安装方式
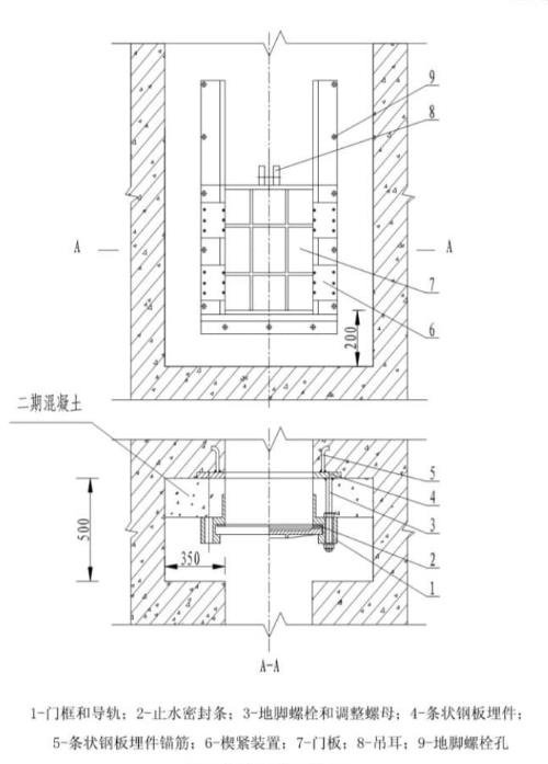
金彩汇铸铁闸门安装通常会采用二期混凝土的方式,在一期混凝土中设置闸门安装槽口,并在混凝土中埋设条状钢板(也被称为铸铁闸门预埋件),条状钢板锚筋应与一期混凝土中的钢筋连接牢固,其埋设位置应与门框和导轨安装位置相对应,且与导轨等高。同时槽口尺寸应满足闸门安装调整和二期混凝土浇筑的需要。 铸铁闸门地脚螺栓应与条状钢板埋件焊接牢固,二期混凝土应采用膨胀混凝土,浇筑前应对结合面凿毛处理。

三、铸铁闸门安装要求
1、铸铁闸门安装前应检查闸门的规格型号、尺寸等,检查结果应符合设计要求,同时闸门外观完好,无裂纹、缺角和掉边等问题。
2、安装过程中铸铁闸门应全闭,楔紧副应楔紧,防止异物进去密封面导致后期试运行出现漏水现象;
金彩汇3、铸铁闸门安装应以门框的机加工侧面和机加工顶面(面)为基准;
金彩汇4、铸铁闸门中线应与孔口中线一致,垂直度、倾斜度应不大于2mm/m;
5、闸门的吊点和启闭机的轴线对中,误差应不大于1mm;
金彩汇6、在闸板无下压力的状态下,用临时连接螺栓保持门板和门框楔紧。临时连接螺栓应在混凝土凝固后拆除。
金彩汇7、闸门安装检测项目与限偏差应符相关行业标准。

四、铸铁闸门如何进行试运行
1、拆除临时连接螺栓,清理门框和导轨,以免异物卡组;
金彩汇2、 闸门与启闭机联合空载试运行时,应操作灵活,无卡阻、突跳及异常声响;
3、调整限位开关或限位螺母;
4、闸门全程试运行2~3次后,止水密封面间隙应不大于0.1mm;
5、闸门在承受正向工作水头压力时,止水密封面渗漏量应不大于1.25L/min·m。承受反向工作水头压力时,止水密封面渗漏量应不大于25L/min·m。
总结:
金彩汇以上就是关于铸铁闸门装配、安装方式、安装要求、试运行的内容了,关注我们带您了解更多铸铁闸门知识,助您选购好闸门。